type
status
date
slug
summary
tags
category
icon
password
天用设计 :Design | 设计
金碧花园:Address | 地址
北欧简约风:Style | 风格
86㎡:Area | 面积
天用·阅上软装: Furnishings | 软装
Star.:Film | 摄影
业主对于设计效果的要求非常明晰,造型从简,全屋智能,满足收纳。
天用团队针对业主的需求,做了三套不同风格、不同改造程度的方案。在为期不短的设计过程中,设计团队和居者在思想上相互碰撞,在设计中相互妥协,最后的成果,也是彼此共同创造和享有的。
我们非常喜欢对自己需求了解的客户,因为生活,重在人而不是形,“以人为本”是私宅定制设计的重中之重。设计从来都是贴合生活来进行的,交流、沟通和谈话,都是为了进一步了解您的真实所需,不做形式化的设计。当您已经想好内容,做好取舍,我们之间的合作将会更加有效率且愉快。
科技智能化的进步,让我们的生活更加方便快捷。极简风格在简单的形式之下,其实蕴涵了很多看不到的细节。因为极力求简,简化了繁复的设计,才能获得更多自由呼吸的空间。
(左右滑动查看原始户型图、立面布置图)
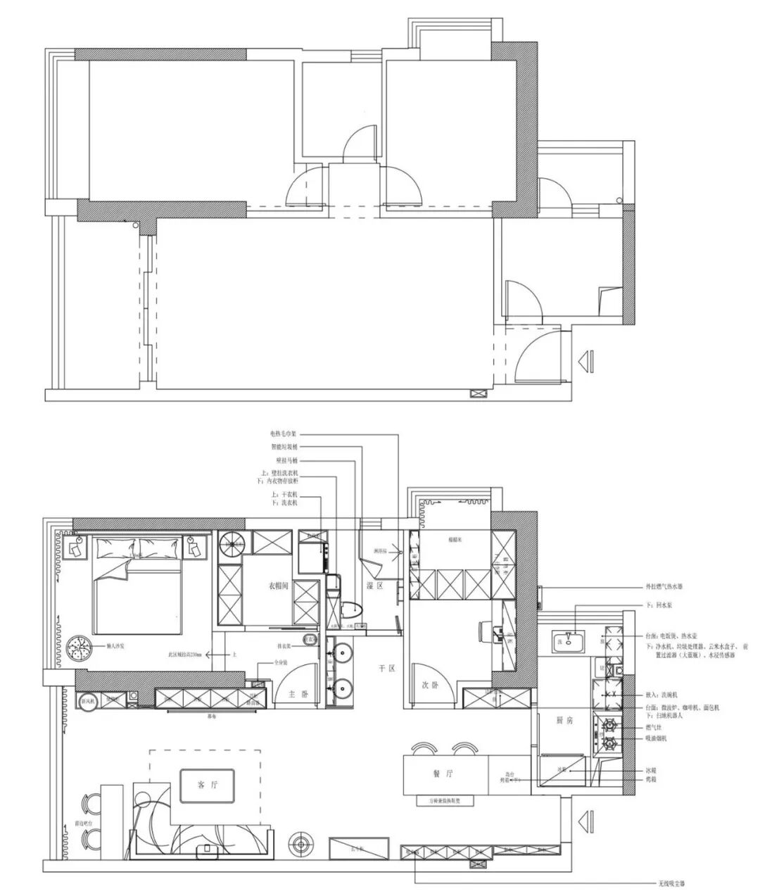
原户型格局方正,但是客餐厅和厨房分隔感太重,无法形成有效互动;现有布局的收纳空间不足以满足业主的生活所需。
通过对墙体的拆砌重组,设计师对各功能区进行布局划分和动线梳理,让其更符合业主的需求,获得更好的居住体验。
拆砌墙示意图▲(红拆,绿砌)
1. 动线优化
改变厨房、卧室、卫生间等门的位置,使动线更流畅,空间更充裕。
2. 空间重组
将两个阳台分别纳入相近的空间,使起居室和厨房两大功能区得到更宽阔和更通透的使用空间。另外,对主卧和卫生间做合适处理,挪出专用的衣帽间;以及卫生间的双洗手盆设计。
3. 凹位做收纳
重砌的墙体做出凹位,完美嵌入柜体,降低体量感,满足储物需求。
4. 全屋智能化
根据真实的使用动线和需求,将智能化设备一一安排在相应的位置,简单快捷地实现智能化家居生活。

起居室全景。从阳台望向室内,纵深通透,两侧天花根据需要拉长延伸,尽可能保留更大的自由快捷。灰色搭配木色和白色,点缀以酷感十足的线性黑色,色彩鲜明,风格突出,符合90后业主的个性化需求。
玄 关

玄关位置较为狭窄,两侧没有安排就近鞋柜,而是往室内移动少许,柜体延伸至餐厅区域。地毯是特别定制的广州地图,红心就是家的位置,热爱生活的仪式感。
用折叠换鞋凳和镜子挂钩等组成简单的玄关更换区,既不占据空间,又让居者能在此稍做整理,去面对不同的情境。
餐 厨 区


餐厅选用轻盈质朴的原木制品,自然的颜色和圆润的形状让视觉和感觉都更舒服。同时,两个设计感十足的餐椅为餐厅赋予了年轻人喜好的个性和风格特写。
餐厅与厨房之间是使用方便灵活的岛台,烤箱藏于其中,将西厨功能移至餐厅;餐边柜是随手可得的就近位置,家庭活动空间更大。


厨房运用黑白两色,打造出干净、整洁、大方的烹饪空间。“L”型操作台使用动线流畅,为家人烹制美食的过程不失为一种享受。
本套案例中,我们在很多地方用了折叠款设计,一是节省空间,二是使用灵活,辅助居者更好地进行家庭活动。
起 居 室

起居室实行“去电视化”设计,不做电视做投影,电视墙位置放整面书架,形成舒适的阅读氛围。书架中部做手办等装饰品的展示区,加上玻璃柜门降低打扫频率。
沙发是“2+1”的摆放布置,两个人可以靠在一起看看电影,也可以分坐两侧,形成良好的沟通氛围。


原阳台区改成开放式的小书房,工作的时候也可以跟家人同处一个空间,感受彼此的气息和温度。小木板可以随手钉上各种备忘录,颜色也与台面和椅子相互呼应。


细长黑框的长虹玻璃给空间带来清清棱棱的朦胧感,造型简约,质感低调。与墙壁同是纯白色的卧室门,存在感大幅度降低,空间整体性效果良好。
卫 浴 间

卫浴是双分离设计,洗手台挪出洗浴区。干区是双台盆布置,可以双人同时使用;湿区中各种小设备符合使用动线,便利生活。
主 卧


主卧用了墨绿色和粉色墙漆,打造梦幻的私人空间。木色硬包床头背景与地面相接,彰显着空间的品质感,不同明度的分色设计点缀出空间层次。

矮矮的床铺,需要往上的台阶,主卧地台抬高至飘窗高度,地面与窗台连成整体,形成具有日式风格的睡眠区域。

次 卧

次卧做成榻榻米样式,三面靠墙;大大的衣柜和榻榻米内部满足业主所需的极大的储物空间。
其 他


房屋信息
设计 | Design :天用设计
地址 | Address :金碧花园
面积 | Area:86㎡
风格 | Style:混搭风
摄影 | Film:Star.
广东天用设计有限公司
Tel : 4001161922
设计咨询微信 : skyuse-13
Web : www.chinaiart.com
您相信的都会实现,
担心的都会发生
可以千里不疲
以梦为马
天用
长按识别二维码,关注我们
网址:www.chinaiart.com
- 作者:Skyfusion
- 链接:https://chinaiart.com/article/ebd14d77-4e45-4ed7-bcc3-25c7d45a30b5
- 声明:本文采用 CC BY-NC-SA 4.0 许可协议,转载请注明出处。
相关文章
