type
status
date
slug
summary
tags
category
icon
password
房屋信息
设计 | Design :天用设计
地址 | Address :广州光大花园
面积 | Area:116㎡
风格 | Style:北欧日式式
摄影 | Film:達方
▶ 本套案例关键词:设计对比、户型改动、收纳布局
业主们应该关注咱们挺久的,调查表好多参考案例都选的我们以往的实景案例
。
本案业主是教师与律师的搭配,是感性与理性的结合。跟一般家庭不一样,男业主在设计过程中参与更多,多种灵感的碰撞,共同筑造出一个温暖美家。设计团队与非常登对的业主夫妇交流,感觉非常甜,是幸福的味道呀。
明亮、舒适、大气是风格上的基本要求。因为在几年内是三代同堂的状态,对于收纳、清洁和交流上会有更多的需求表达。
对色彩和材质,我们选择平和舒适的中性色和温润的木材;家具也选择更灵活地可以一物多用的款式。除了每个房间的大衣柜,在公共区域也各自安排储物量充足的柜子。
本案将效果图和实景图一一对比,全方位展现我们的把控。每有一套设计落地入住,都有一种感动萦绕心间。很高兴成为美好生活营造师的一员。
户型改造分析
原户型图对于本案业主家庭需求来说已相对完美,对各处的布局规划也很合理。设计师主要对小部分区域进行调整改善,让居者居住过程更为顺畅,动线更圆滑,同时更好地利用空间。
一、原玄关短而狭小,鞋柜占位不大,作为家内外的连接处太过局促。改造后,鞋柜空间扩大,用镂空屏风和六角砖重新划分玄关空间,显得大气而自然。
二、在满足使用需求的前提下,将公卫区域的空间压缩,做成餐厅的柜子和厨房的料理台。
三、将部分阳台纳入房间,做成室内小书房。位置绝佳,采光优越。
(细节改造对比图)
一
收纳布局分析
对于业主来说,收纳是设计不容忽视的点。
储物柜各处均布,不仅能方便业主们使用,对于整体视觉效果也有好的影响。我们使用和收纳都采用就近原则,减少行为动线的发生;同系列的柜体和谐统一,纯白降低压迫感,空间感优越。
公共区域的柜子保持“二八原则”,露:藏=2:8。露出来的部分方便随手置物和装饰品摆放,藏起来的区域放置其他不太美观或比较乱的物品。隐藏80%乱,才能展示20%美。
(收纳储物分布图)
玄 关


全屋主色调是木色和白色,营造温馨舒适的宜居氛围。客餐厅通铺木地板,连成整体。暖融融的木地板按序排列,温润细腻;白色柜体和墙体有延伸视觉的作用,温暖明亮。
空间配色我们采用了美学中的橙蓝作为对比色。在大面积的暖色调中,用不同深浅的蓝色作为冷色点缀,使整体空间不过于单调乏味,有眼前一亮的惊喜感。

玄关简洁明了,六角砖不规则铺贴显得别致有趣。鞋柜拥有极大储存量,纯白色也有拓宽视觉效果。中部留空便于随手置物,底部可减少开关柜门的步骤。柜子上留有灯光方便一进门不用立刻开客厅的大灯。
右边是换鞋凳+小朋友的专属鞋柜。在亲子关系中,有时需要保持适当的距离感,让小朋友有自己的私人空间。

玄关跟客厅以不同材质交接,同时用木质屏风隔断对客厅的直视感。大株绿植带来清新的绿意,更加生活化。
客 厅

电视柜款式具备相当大的储存量,封闭式的设计使之更好打理,小部分开放格方便置物的同时也可以作为展示柜,彰显个性。木色和白色搭配的极简风跟整体风格统一,好看又雅致。


客厅选择柔软的灰色布艺沙发,搭配清朗的蓝色挂画,像暖和春天里一缕清新海风。
当我们挑选多张挂画时,要考虑其中元素的统一性。最简单的方式是风格+颜色,比如本案例子,都是简约风,都是蓝色系。前套港式案例的,就是意会风+黄色点缀,更具灵活性。


金属质感的细腿白色餐桌,搭配小朵小朵的鲜花,文艺感十足。单人椅是“抓眼”的亮黄色,舒适感满分。
软装单品一般以两个方面作为维度选择,一是使用舒适度,二是颜值美貌度。生活要有仪式感,仪式感则来源于精致的物品或特别的生活体验。
餐 厅


餐厅由质感满满的木餐桌椅和餐边柜组成。棕色木质有深厚的时光印刻,线条顺滑自然,手感满分;一长二短的餐椅搭配灵活不呆板。餐边柜风格跟其他柜体一致,且根据需求分隔各个小空间,便于分类置放物品。
暖黄的灯光打在家人用心烹饪的食物上,增添一层幸福的美味度。

灯光是生活动线不可或缺、不容忽视的重要部分。从厨房望向阳台,设计师选择了散射状的柔和暖光,灯光和材质互相配合,空气与光线自然流通,层次分明,和谐融洽。
厨 房

厨房是“U”型设计,操作台面宽阔,方便多人同时使用。浅灰色瓷砖纹理自然,耐脏且对采光没甚影响。
走 廊

走廊延续客餐厅的风格,纯白色房门隐身于墙面中,降低视觉切割感。
主 卧


主卧是浅色调,柔软的浅灰床品加上浅色木地板,营造一种温柔似水的安抚氛围,让居者的心平静放松。植物系挂画加入一些活泼气息,增加了空间的舒适感和生活的情趣。
次 卧

榻榻米房满足基本的睡眠需求之外,还有书桌和相应的衣柜,便于家人朋友小住。书桌上方的纯白吊柜隐于墙面,降低压抑感。
儿 童 房


女孩房选用清浅的粉色系,上下床+超大衣柜,足以满足小公主美美的愿望。充满童趣的挂画和小小的玩具空间,可爱又温馨。
将一半阳台包入儿童房,做成学习区。独立的学习区域有助于培养仪式感和自觉性,有利于进入学习状态。极简布置减少分散注意力的可能。
卫 浴


公卫是两分离格局,墙面铺贴白砖,黑色勾缝,地面使用不同的贴砖方式。用布帘做隔断,节省空间,方便更换清洗;淋浴区留出小小的洗浴用品置物区。

主卫跟公卫格局风格大致一样,不赘述啦~
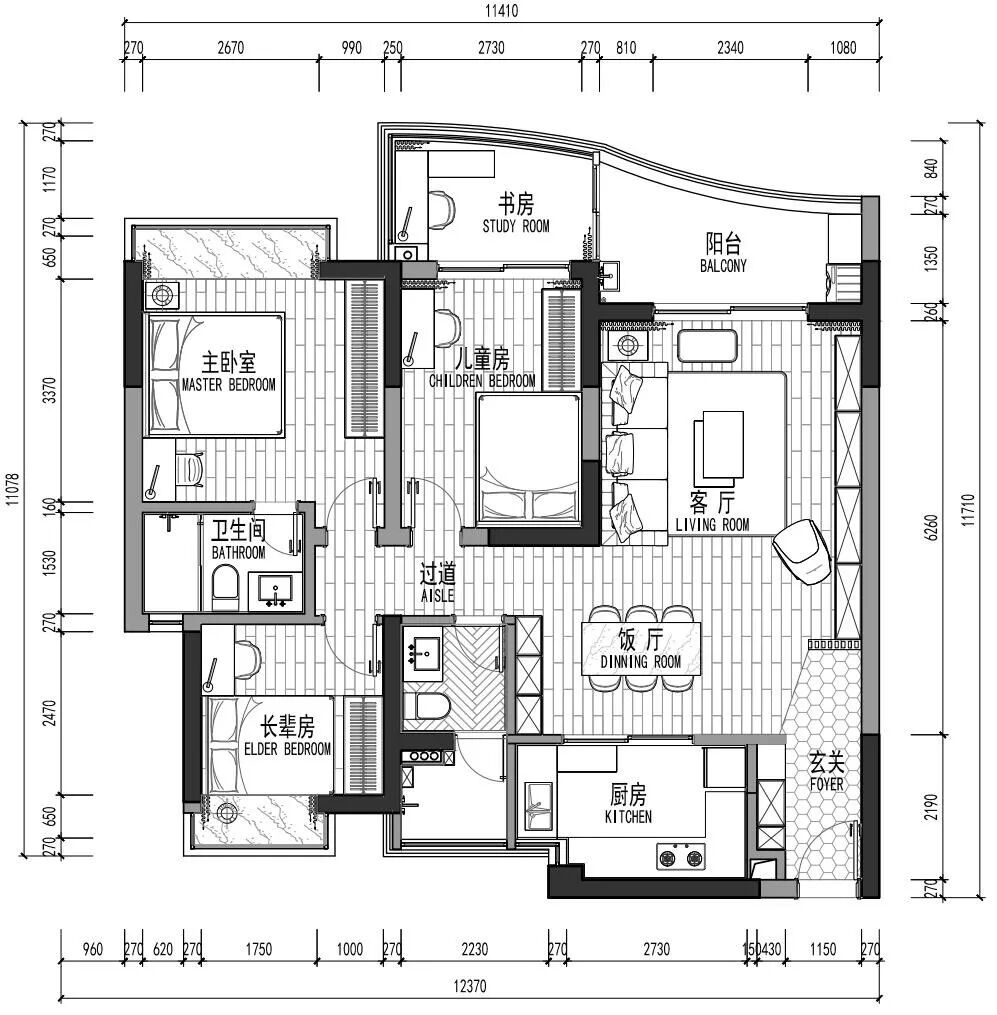
户 型 图
房屋信息
设计 | Design :天用设计
地址 | Address :广州光大花园
面积 | Area:116㎡
风格 | Style:北欧日式式
摄影 | Film:達方
- ---------------------------------
广东天用设计有限公司
Tel : 4001161922
设计咨询微信 : skyuse-13
Web : www.chinaiart.com
您相信的都会实现,
担心的都会发生
可以千里不疲
以梦为马
天用
长按识别二维码,关注我们
网址:www.chinaiart.com
- 作者:Skyfusion
- 链接:https://chinaiart.com/article/8559f08f-d285-4b9d-a99a-9ad76ebb4502
- 声明:本文采用 CC BY-NC-SA 4.0 许可协议,转载请注明出处。
相关文章
