type
status
date
slug
summary
tags
category
icon
password

房屋信息
设计 | Design :天用设计
地址 | Address :广州富基广场
面积 | Area:100㎡
风格 | Style:北欧简约风
摄影 | Film:Lei.& Star.
本案业主是性格超好的一对夫妇,跟设计师性格相合,希望设计师可以将城市喧嚣与浮躁过滤,营造安静美好的家庭休憩氛围。如果我们都是站在同一个方向向前看,那么有原则的设计师总会与您目光一致。
经过跟业主的沟通与交流,最后决定从品质入手,精简各种不必要的设计。设计过程中,沟通愉快而富有建设性。
有时候业主对于家的理解在于片段,这些片段总是美好的,而当生活串联起来就会发现一些梦想归梦想、生活归生活,柴米油盐总是最平静那一刻。相信每个业主在自己的领域都是聪慧有加,但室内设计与空间规划,交给设计师与您一起,共同营造。
简约不是简单,是简洁精约,言简义丰。它不是用一些‘简单’的家具和‘浅彻’的理念堆砌而成,它是经过了设计师无数个深思熟虑,精心推敲而出,以少胜多,以简胜繁。
跟着业主们从毛坯房到最后美家落地,一路有配合有惊喜有思维碰撞,也有讨论有争执有和解。共同目标让我们相遇,当成果交付那一天,也许是一场谢幕,也许是另一场期待的开始。希望能为您未来的生活和居住略尽绵力。
而我们默默收拾起行装,为下一位顾客继续演奏。这未必是无暇的乐章,但愿能偶尔得到各自心中的无愧就足矣。在社会中奋斗,不负自心不负前程。
♡♡♡♡♡♡♡♡♡♡
色彩搭配 ▶ 全屋配色选用饱和度较低的素色系,自然光源和各种灯具配合,营造足够的采光氛围。整体沉稳安静,风格鲜明,舒适美观。
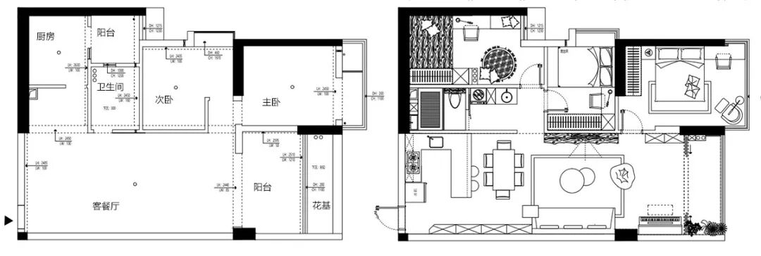
平面设计 ▶ 2房改三房。设计团队将厨房移到客餐厅,阳台包入室内,使起居室区域面积更旷阔,使用更自如。左上部分拆分整合,腾挪出第三个房间和其他方正又便于使用的功能区。

▶ 原始结构图&平面布置图
♡♡♡♡♡♡♡♡♡♡


起居室全景,色调平衡,格局通透。用不同风格的软装搭配出个性化的心灵放松空间。
在装修时,施工发现起居室天花实际情况跟前期调查和设计不一样,设计师、业主以及施工方三方紧急开会讨论修改方案。设计师用叠级的方式对其进行处理,使大部分位置能保留足够的层高。



客厅采用环形布局,面对面让谈话氛围更浓厚。茶几选择轻盈便捷的小型成品,平时可以把它转为边几使用,中间就可以挪出整片宽敞的活动空间,是为家庭活动点。

原阳台区包入室内,做成休闲区。门外是花基填平做的新阳台。
钢琴放在公共空间,练习时与家人相互陪伴;左边是小宝的活动区,柜体下方的开放空间是各种玩具的收纳区,适配小宝身高,锻炼小宝收纳的自律性。

原户型是没有玄关的,设计师用冰箱和鞋柜划出玄关区域,为进门提供一定的缓冲作用。
鞋柜跟餐边柜连成整体,纯色的无修饰柜面带来极致简约体验;体量感轻盈,即使是大柜子也不会压抑,而是显得很宽敞。

将厨房挪出来,打造餐厨一体区。在使用上更方便,又无视觉遮挡,公共区通透干净。
餐厅采用线条简洁的成品类餐桌椅,用色是跟全屋一致的浅色系,单独的艳色红椅给空间带来更多灵动与生气,跃然于想象中。


厨房是开放式U型设计,拥有超长操作空间和充足储物区。白色的石英石台面搭配浅灰色柜体和小白砖,简约而不简单,有诗意的时尚感。
女业主是美剧爱好者,对于这白色岛台爱得不行。她说,切洗水果的时候,有种在拍戏的美感,感觉自己是世界的主角。

主卧有非常优秀的采光与视野,深蓝和纯白营造清爽明朗的空间,用极简的主卧内部设计对比出窗外世界的繁荣。


窗帘拉上之后基本就是夜晚,遮光效果一级棒!筒灯洒落柔柔光线,搭配重点照明,睡前阅读氛围满分。
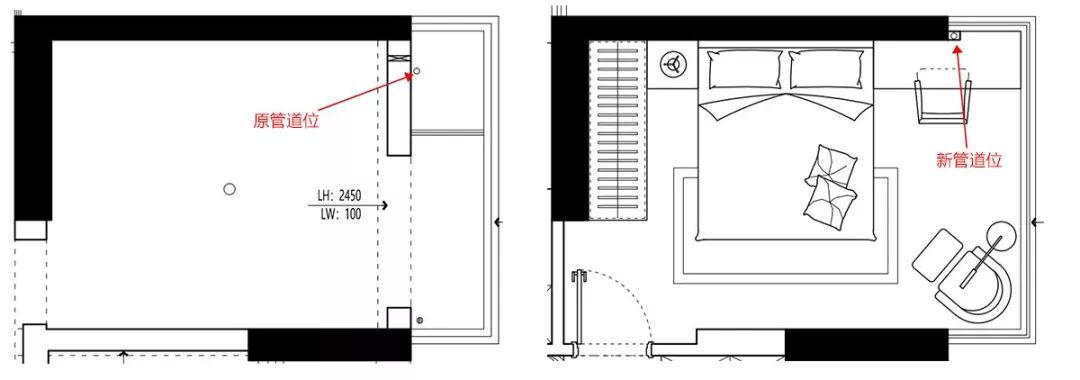
施工遇到的问题&解决方式
主卧的空调排水管在原户型里处于阳台墙垛的附近,如果我们直接打拆掉墙垛的话,管道将处于中间位置,影响空间的连续性。设计师在设计后将其移至承重墙与玻璃窗中间,可以形成整体的可利用空间。
施工过程中,施工方表示无法移动,应从管道位至窗台用厚重的墙体将其掩盖。设计师结合多年的设计经验,也考虑了合理性和可行性,最后利用上方天花和抬高部分地面,将管道移至墙体边缘,让空间保持整体性。(PS:因为空调排水管道水量不会太大,所以可以移动,其他情况请酌情考虑。)
管道移动示意图


男孩房用蓝色为主色调,简单的布置足以满足睡眠需求。因为小朋友的主要活动空间还是在起居室,但偶尔也需要在梦中跟小伙伴们一起拯救世界。

衣柜局部留空,方便随手置物,或者放置近期在看的书籍等等。


女孩房相对更柔美。主色调是粉嫩的粉色系,再用浅灰色加以调和,实际上呈现的是未来十多年都可以使用的居住空间。

卫浴区和洗衣区结合。用不同的地砖做干湿分区,洗手台移出来的双分离模式,更适合一家四口的使用需求。
洗衣机和干衣机嵌入柜体,视觉简练,功能到位。右边柜体空间收纳长条形清洁用具,上方存储女业主购物节“剁手”买的纸品清洁用品等~。
卫浴嵌入式柜体示意图

全屋都是简约大方的纯色系,设计师和业主沟通后,觉得可以局部添加一些活泼明快的元素,最后决定将阳台和卫生间的地砖选择为跳脱可爱的花砖,最后效果还是很不错的

。
最后的最后
▶ 位于高层的风景,总是那般美好。风云变动,我自岿然不变。

广东天用设计有限公司
Tel : 4001161922
设计咨询微信 : skyuse-13
Web : www.chinaiart.com
您相信的都会实现,
担心的都会发生
可以千里不疲
以梦为马
天用
长按识别二维码,关注我们
网址:www.chinaiart.com
- 作者:Skyfusion
- 链接:https://chinaiart.com/article/5c4566f2-69d4-4aca-968d-5ab180e597e4
- 声明:本文采用 CC BY-NC-SA 4.0 许可协议,转载请注明出处。
相关文章
