type
status
date
slug
summary
tags
category
icon
password

房屋信息
设计 | Design :天用设计
地址 | Address : 广州中环品悦
面积 | Area: 53㎡
风格 | Style:轻奢风
摄影 | Film:雷
▶ 本套案例关键词:墙体改造、施工说明
这是一对年轻小夫妻的幸福之家。
全屋是金色和粉色混搭成的柔美轻奢风。我们并没有对此做什么造型,利用采光和玻璃门的透光性,使空间感得到延伸;低调的浅色系少了厚重感,略显奢华的金色装饰多了精致感。
女业主喜欢嫩嫩的粉色,设计师用餐椅和单人椅的方式让它加入其中,好移动好更换。对于象征意义比较明显的颜色,我们更倾向于用软装搭配,这会让颜色更灵活,改变也更容易。
在这么美的家里,感觉生活的每个步骤都有满满的仪式感。也许新鲜期过了就没有了,但都会记得此刻的惊喜和幸福,记得身边这个人的陪伴有多么美好。
《绝望的主妇》里有这样一段话:无论身心多么疲惫,我们都必须保持浪漫的感觉。形式主义虽然不怎么棒,但总比懒得走过场要好很多。
每一个仪式感需求的背后,都藏着一份爱的表达。思念,就是爱里最好的仪式,它让所到之处皆有温度。

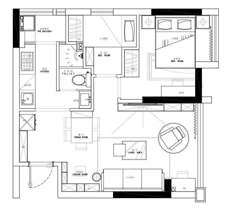
玄关直面厨房,用透明玻璃作为隔断,让景色继续延伸,有很好的空间感。
纯白色的鞋柜和冰箱,降低小户型的视觉拥挤感;考虑到使用便捷,鞋柜是半封闭式,减少开关闭合的麻烦,常用物品放出来。

小小的餐厅靠在墙体边,浅灰和灰粉搭配,和谐清新。餐桌椅选择细腿薄面的浅色系,剔透轻盈;灯具挂钟以及桌上的餐具,都掺和了金色原始,精致玲珑。


客餐厅随处可见的金色元素,将空间衬托出精致的轻奢感。粉色橙色等暖色系的加入,柔和金色的冷硬,使整体气质更灵活多变。

电视背景墙是天然大理石搭配纯白储物柜,让柜体融入环境中,降低压抑感。

浅灰色沙发和粉色单人椅搭配在一起,有点像男女业主的组合,温润如玉+娇俏迷人,达到和谐融洽的效果。
沙发背景墙用了石膏条回形框,跟储物柜柜门风格相互呼应,是简单的欧式意象风格。


在沙发隔壁划出小小的书房,超简洁的设计,储物主要通过上方吊柜实现。沙发和书桌之间的空隙,可以放置一个小的移动置物架哦~
在小户型的起居室,可以实现出来睡觉之外的所有功能。抬眼可见的距离,家人之间的联系更为紧密,可以参与到每个活动,存在于彼此空间。
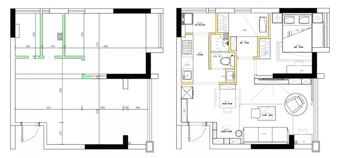
墙 体 改 造
墙 体 改 造
原户型是一居室,考虑到未来很长一段时间的生活需求,所以将其改为二居室。
将厨卫区的墙体打拆掉,根据使用效率和生活动线规划生活区,重建墙体。可以看到,很多墙体并不是直来直往的,而是有一定的转折,是为柜体预留凹槽,使柜体隐身,巨大体量消失,拥有相当的轻盈感。
墙体改造前后对比

从不同角度看,有不一样的风景。


厨房和阳台用六棱砖通铺,“I”字型台面按“洗-切-煮”的顺序排开,符合使用动线。右边墙面还布置了可折叠的板台,使用时放下,不使用时拉上,不会影响动线流畅。
阳台主要是洗漱区和绿植区,给生活添点绿意。


主卧是极简的欧式风,线条明显,强调材料的质感。金色粉色橘色和白色相互糅合,恋爱的甜味融入到生活中,每天都要幸福呀~


走廊不长,这面墙跟玄关那面刷了浅灰的色漆,给空间带来好看的变化,也是简单的区域划分,同时向外看有相当的层次感。

给未来宝宝准备好的房间,温柔的暖色系希望带给宝宝幸福的体验。床下床尾都是大大的储物区域,满足各种储物需求。


卫生间是双分离格局,利用凹位将洗手台移出来,方便使用。黑色勾缝小白砖,金色洁具浅灰墙,小清新又不失轻奢感,跟整屋风格一致。
施 工 说 明(节选)
一套完整的施工图,方便业主、设计师和施工队三方沟通。按图施工,每个步骤都有详细的说明,使方案落地的可能性变大。
户 型 图
房屋信息
设计 | Design :天用设计
地址 | Address : 广州中环品悦
面积 | Area: 53㎡
风格 | Style:轻奢风
摄影 | Film:雷
广东天用设计有限公司
Tel : 4001161922
设计咨询微信 : skyuse-13
Web : www.chinaiart.com
您相信的都会实现,
担心的都会发生
可以千里不疲
以梦为马
天用
长按识别二维码,关注我们
网址:www.chinaiart.com
- 作者:Skyfusion
- 链接:https://chinaiart.com/article/59485737-605a-49cb-97f5-1aab9fb7c65e
- 声明:本文采用 CC BY-NC-SA 4.0 许可协议,转载请注明出处。
相关文章
