type
status
date
slug
summary
tags
category
icon
password
关注广州设计标杆^
,时长00:15
天用设计 :Design | 设计
东莞森林湖:Address | 地址
163㎡:Area | 面积
北欧现代:Style | 风格
Star.:Film | 摄影
业主希望总体风格气氛:温馨大气,耐看实用,有归属感;格局设计:希望一家人的活动有聚的感觉,而不要显得离散,同时兼顾休息睡觉的时候不要互相影响。
分别来自南北地区的业主夫妻,对于饮食有不同的喜好,所以在设计过程中需要兼顾双方的需求,呈现平衡的状态。
关于设计的工作,绝非任何图腾图案符码的简单撷取,而是自认充分理解且认同其中精义精髓——关于线条、语汇、颜色、材料的看待、运用、处理,关于思考自然援引自然融入自然的方式,关于解读生活观照生活,回应需求解决需求的角度。。。
2019年,天用团队在各方面都迈出了自己的步伐。从效果图到3D模型,从黑白施工图到彩色施工图,设计交付成果更全面,更直观;从平台上的项目直播,到每天汇报施工进度,业主直接参与施工进程,三方监督施工质量。
新的一年,我们将继续逆流而上,输出更好的服务和作品,不忘初心。
户 型 改 造
原始结构图
平面布置图
(左右滑动查看原始结构图、平面布置图)
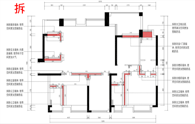
天用团队在硬装上,通过重新规划墙体造成的零碎空间,形成更加宽敞舒适的空间格局。
主要包括两个方面:
一是公共空间的开放性。将厨房、书房和走道这些共用的公共区域都包入起居室这个大空间,让其宽广度得到提升,营造一家人活动的温馨空间。
二是私密空间的整体性。房间和卫生间的布局根据实际情况进行再设计,让动线更方便流畅,而收纳可以很好地嵌入墙体,既实现高收纳的需求,又不影响视觉效果。
拆砌墙体图示▲
起 居 室


起居室开阔通透,采光优秀,呈现出舒服且大气的空间感。精心控制的不同明暗灰度的色彩,在起承转合间相互配合彼此关联。
空间里的一饰一物,都没有过分的奢华与浮夸,通过朴素的材质与简洁的造型,让其更具高级感,在低调中彰显居者精致、有品位的生活格调。

电视两侧的窗台用木板包裹,形成简单的独立空间。足够的长宽与木质的温润让其成为很好的休闲空间,坐在此处看看风景聊聊天,也是非常不错的体验。

L型布艺大沙发,搭配中间的皮质圆踏,营造人与人交流的氛围。这是全家人聚在一起的时光的主要活动空间,也将会是静静坐下阅读的地方。

餐 厅

厨房与餐厅之间用折叠细框推拉门隔开,厨房不工作时,尽量呈现为开放式厨房。

大块的原木板作为餐桌,搭配质感良好的皮质餐椅,风格与全屋整体适配。细细的黑色铁质桌椅脚,轻盈灵动,减轻上部的厚重感。
厨 房


厨房是环状结构设计,确保足够的操作区可以实现业主关于共同做饭的设想。不同明度的灰色与木色颜色搭配合理,储物空间充足,且充分考虑立体收纳的实用性和空间利用率。
过 道


书房和女孩房向内移动少许,留出更宽敞的过道空间。木地板通铺在客餐厅至房间,摒弃了多余繁杂的设计,选择用最简单的“语言”诠释原木的美。
卫 生 间

卫浴间洗漱区与走道相接,呈现开放式的空间感;简单的黑白色配合不同的材质组合,打造出简约、大气又精致的空间。

凹位空间加上一扇门,藏着家居里的各种工具。运用立体收纳的优势,整整齐齐地摆放好。
阳 台

阳台与室内用玻璃材质的墙和门分隔,视线可以肆意延伸,两端互相借景;品种、大小不一的绿植静静立在室外,地面是好看的碎石灰六角砖,场景元素丰富饱满。
主 卧

主卧以灰蓝色与木色为主色调,科技皮的灰色软包搭配柔软贴身的床品,营造优雅、静谧且舒服的休憩空间。


两套顶天立地的大柜子,线条流畅,造型简洁大气,储物功能强大,完完全全满足了业主对于收纳储物的需求。

私人领域内的安静小空间,在柔和的灯光下,做一点自己的事,暂时放下外界的压力。

从主卫望出主卧,在自然质朴的木质材料中间,通道略有曲折,有良好的私密性。

主卫用石材、玻璃与铁质打造成黑白冷硬风的空间,极具时尚感。
儿 童 房

男孩房在硬装上以简洁为主,符合使用者身高地设置层板,方便小朋友取放图书。童趣的小车车在挂画上,在被子上,也在小朋友的玩具箱里。

女孩房暂且不做过多装饰,上下床嵌入凹位,简单地呈现自然和谐的感觉。
书 房

书房,亦是多功能房,集琴房、书房、卧室于一身。中间的书桌是伸缩款,处于卧室用途的时候,可以收进柜体,留出足够的空间放置床体。
开放与封闭组合的书柜,不同的格子结构,能很好地放置和储藏各种各样的书籍;墙上挂着业主们旅行的照片,藏着满满的美好回忆。下半部分刷上黑板漆,爸爸妈妈工作的时候,小朋友们可以在此尽情描绘脑海中神奇的世界。
房屋信息
设计 | Design :天用设计
地址 | Address :森林湖兰
面积 | Area:163㎡
风格 | Style:北欧简约风
摄影 | Film:Star.
广东天用设计有限公司
Tel : 4001161922
设计咨询微信 : skyuse-13
Web : www.chinaiart.com
您相信的都会实现,
担心的都会发生
可以千里不疲
以梦为马
天用
长按识别二维码,关注我们
网址:www.chinaiart.com
- 作者:Skyfusion
- 链接:https://chinaiart.com/article/268c010d-9619-4671-b514-956a2297f5ee
- 声明:本文采用 CC BY-NC-SA 4.0 许可协议,转载请注明出处。
相关文章
