type
status
date
slug
summary
tags
category
icon
password
设计 | Design : 天用设计
地址 | Address : 香山湖
面积 | Area :137㎡
风格 | Style :北欧现代风
软装 | furnishings:天用·阅上软装
定制 | Fixed furniture:天工坊制造
摄影 | Film : Star.
业主关于生活的设想详细而具体,且设计师的审美得到来自业主的肯定,关于设计的方面也没有大的冲突。整个设计流程进展顺利,合作过程愉快和谐。
从整体到细节,不断协调和一步步谋划达成最后的落地效果,这不只是设计团队的努力,也是业主的认可和放心,让成品比设计图更优秀,居住感更舒适。
好的设计,一定是出于尊重和理解,尊重和理解业主的初衷,理解他的使用诉求,理解他的审美需要,理解他的预算状况;并且把诸多的理解变为现实。这也是一个合格的独立设计师应该做的。
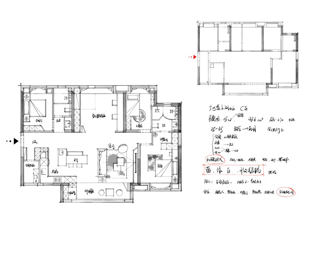
平 面 设 计
平面布置图▲
本套案例关于平面布局的最大改动是:打通厨房、书房和阳台,形成宽阔的大开放式空间。
木纹砖通铺,折叠门开放,通风和采光得到最大优化,居住其中,舒适安然。
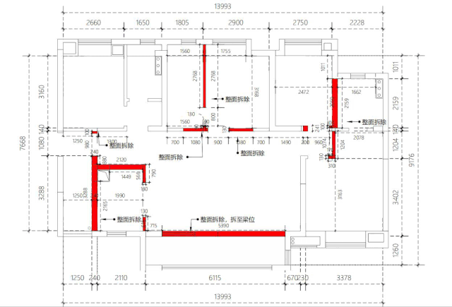
拆砌施工图图示▲
起 居 室

起居室全景。主空间用简单的黑白灰以及温润的木色,通过开放式设计,营造出开阔通透又温暖安静的氛围。
起居室空间承载着一家人的休闲娱乐、家庭互动、烹饪就餐等等功能,因此,综合沙发、餐桌和岛台等多种元素的公共区域,满足了居者的多元化需求。

客厅是简单的电视柜+沙发+茶几的组合,营造一个随性、舒适、散漫的空间。同时最大限度和阳台连接,让室内外的界限最小化。细节处的墨绿色软装给空间带来惊艳感。
考虑到未来入住人员的变动,客厅安排了电视和投影仪,满足不同人员的使用需求;开放与封闭组合的电视柜,可以展示各种装饰品,又能收纳各种物品,颜值高实用性好。

走道尽头是继续延伸的挂画,色彩和内容都与室内元素相互呼应。

客厅与餐厅通过软装摆放的方式分隔,视线不受阻隔,触碰的感觉也不受阻挡。
轻灵的浅色系和温润的木色,整体宁静舒缓;光线透过轻纱,穿梭于空间,用独特的方式晕染出空间的层次。
餐 厨 区

客餐厨在同一开放式空间,餐桌居于中间,分隔不同功能区。

餐厅选用纯木制餐桌椅,一方面触感和使用感优秀,另一方面很好地融入全屋设计。

将原有的封闭厨房打通并扩大,L型操作台+岛台让烹饪变成可全家参与的活动,不再是传统的封闭空间内少数人做饭的方式。同时合理利用墙面,让小物件上墙,实现立体收纳。
玄 关 / 过 道


玄关区域用黑白灰三色六角砖拼贴而成,区别于其他的木纹砖,形成简单的转换心情的停顿空间。鞋柜和生活阳台位于玄关进门方向右侧,方便随手置物及换鞋等。
书 房


书房安排两个工作区,既用柜子连接,台面又保有彼此的独立性。像人与人之间的关系一样,有自己的个性喜好,也有两人间共同的爱。
墨绿色的背景墙上贴着世界地图的轮廓,业主们的世界之旅就从这里开始吧~

书房使用折叠门,平时保持开放的设计,让空间相互连通,家人之间拥有良好的互动感。右边的柜子藏有隐形床,在需要时拉下来,再关上折叠门,就是一个封闭的卧室空间。
未来家庭成员可能会有较大变化,所以各个房间都考虑到睡眠的需求,以应不时之需。
阳 台

阳台与起居室之间的墙体等打通,但并不包入室内,而是保留独立的室外空间。
拼花铺法的防腐木,搭配仿古的浅色藤椅,未来再加上葱葱郁郁的绿植,是非常舒服的休闲阳台。
公 卫

简单的黑白色构成简洁大方的洗浴空间;分离式的设计让卫生间的功能布局更加细化,满足一家人的使用需求。
次 卧

卧室设计以舒适为主,整体空间是简洁、无负担的,让人自然地放松,进入休息状态。
主 卧


主卧以浅灰色为主色调,少许金色元素增添轻奢感,设计装饰点到为止,生活本该简单自然。

深蓝色的成品梳妆台,造型富有设计感,与挂画都有相互呼应的元素,有趣且有个性。


卫浴间风格统一,主卫较之增加了椭圆形浴缸。在疲累的时候,放满热水,泡去疲惫与烦恼,好好睡一觉,明天再继续为生活奋斗!
房屋信息
设计 | Design :天用设计
地址 | Address :香山湖
面积 | Area:137㎡
风格 | Style:北欧简约风
摄影 | Film:Star.
广东天用设计有限公司
Tel : 4001161922
设计咨询微信 : skyuse-13
Web : www.chinaiart.com
您相信的都会实现,
担心的都会发生
可以千里不疲
以梦为马
天用
长按识别二维码,关注我们
网址:www.chinaiart.com
- 作者:Skyfusion
- 链接:https://chinaiart.com/article/0acaf7c1-2867-4bb4-b3d8-6721c717f4c2
- 声明:本文采用 CC BY-NC-SA 4.0 许可协议,转载请注明出处。
相关文章
